W centralnej lokalizacji w Ramsau Ort znajduje się nasz pensjonat Prugger. 4 apartamenty mają po 70 m² z 2 osobnymi sypialniami.
W cenie zawarta jest karta Dachstein Sommercard, dzięki której można bezpłatnie korzystać z wielu atrakcji, takich jak koleje linowe, drogi płatne, jeziora kąpielowe i wiele innych. Zimą korzystasz z karty Ramsau Wintercard!
- Ramsauer Wintercard Partner
-
Sommercard PartnerThe Sommercard is included from May 29 to November 2, 2025, 2024. Overview of all attractions * From October 1 to November 2, 2025 the Herbstcard (Autumn Card) is available.
Health and security measures
- Bezkontaktowy checkIn/checkOut
- Zasady zachowania odstępu są przestrzegane
- Możliwość opłat bezgotówkowych
- Separacja albo fizyczne bariery między personelem i gośćmi w odpowiednich obszarach
- Spisanie danych kontaktowych gościa podczas checkIn, potrzebnych w razie infekcji - za zgodą gościa
- Użytkowanie aplikacji zdrowotnych i ustalania kontaktów jest polecane
- Pracownicy noszą maseczki
- Uwrażliwienie pracowników na zachowanie zasad minimalnego odstępu
- Pracownicy są poinformowani o środkach prewencji i higieny oraz o poprawnym zachowaniu w przypadku symptomów COV 19 lub infekcji
- Pościel, ręczniki i inne pranie podlega czyszczeniu według zasad miejscowych władz
- Miejsce zakwaterowania sprzątane jest przez profesjonalną firmę
- Personel realizuje wszystkie zasady bezpieczeństwa miejscowych organów władzy
Obiekty
-
Przydatności
- dzieci
- grupy
- młodzieży
- niepalący
- podróżujących w interesach
- rodziny
- seniorów
- single
-
Sport / czas wolny
- wycieczki z przewodnikiem
- wypoczynek formą adventure
-
Wyżywienie
- możliwość wykupienia śniadań
-
Położenie
- na obrzeżach miejscowości
- na trasie narciarstwa biegowego
- położone na wzniesieniu
- przy szlaku turystycznym
- spokojna okolica
- w centrum
- w naturze, w otoczeniu łąk
- w sąsiedztwie łąki
-
Wyposażenie
- Freier Eintritt öffentl. Hallenbad
- nieodpłatny internet
- obiekt dla niepalących
- ogrzewanie
- otoczenie przyjazne dla osób o orientacji homoseksualnej
- parking dla samochodów osobowych
- przechowalnia rowerów
- przyjazne dla rodzin
- przyjmujemy zwierzęta domowe
- w zimie niezbędne łańcuchy śniegowe
-
Wypożyczalnia
- kijki turystyczne
-
Grupy
- grupy do osób: 24
-
Forma płatności
- Ec-Cash / Maestro
- faktura
- honorujemy karty kredytowe
- przedpłata
- przedpłata na konto
- płatność gotówkowa
-
Języki obce
- angielski
- niemiecki
-
Dzieci
- krzesełko dla dzieci
- łóżeczko dziecięce/ łóżeczko z barierką
-
Warunki
Please transfer a down payment of 50 % from full amount to our bank account!
Please pay the rest of amount 2 weeks before you arrive at Schladming!
Upon arrival, we require a security deposit of € 300.-.
-->Please send us your address, mobile phone number and approx. arrival time
at Schladming!
Kontakt i wskazówki
Appartements Gästehaus Prugger
8972 Ramsau am Dachstein AT
Informacja prawna dotycząca usługodawcy
Appartements Gästehaus Pruggermy-adventure
Ramsau 290,
8972 Ramsau am Dachstein AT
Przyjazd
Proszę także podać swój dokładny adres, numer telefonu komórkowego oraz
przybliżony czas przyjazdu, DZIĘKUJEMY!
Informacje o przyjeździe & wyjeździe: Zameldowanie 14:00 – 18:00
Proszę zadzwonić godzinę przed przyjazdem do nas
pod numer +43 676 56 15 717 lub +43 3687 94 166
Proszę przyjść do naszego biura, stamtąd
poprowadzimy Państwa do apartamentu!
W zależności od sytuacji rezerwacyjnej postaramy się uwzględnić
pożądany czas przyjazdu bez dodatkowych opłat.
Od 19:00 naliczamy opłatę za późne przyjazdy w wysokości € 30.-, a od 22:00
€ 50.-. Po 24:00 nie ma możliwości przyjazdu.
Wymeldowanie 8:00 – 10:00
Proszę zgłosić się telefonicznie na dzień przed wyjazdem pod
numer: +43 676 56 15 717
Kontrola apartamentu oraz przekazanie kaucji i kluczy
Nasza adres biura: 8970 Schladming, Maistatt 724 - obok Golden Jet Planai
Adres nawigacji: Salzburgerstrasse 777 (Szpital-Schladming / naprzeciwko
znajduje się nasze biuro w małym drewnianym budynku)
(Współrzędne biura: +47° 23' 28.26", +13° 40' 40.50")
Zdjęcia
Apartamenty & Ceny
Pokoje
-
od 110,00 €
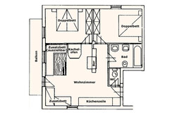
Rozmiar 70 m² Miejsca 1 - 6 osoby dorosłe , 0 - 5 dzieci Pokoje 3 Sypialnia 2 opis pokoju
W centralnej lokalizacji w Ramsau Ort znajduje się nasz Gästehaus Prugger.
W cenie wliczona jest karta Dachstein Sommercard, dzięki której mogą Państwo korzystać z licznych atrakcji, takich jak kolejki linowe, drogi płatne, jeziora do kąpieli i wiele więcej, całkowicie za darmo. Otrzymują także Państwo zimową kartę Ramsau za darmo!
Śniadanie dostępne na życzenie w hotelu Kirchenwirt - Pehab!
Prosimy o wcześniejsze zgłoszenie i płatność na miejscu:
Za osobę dorosłą: € 18,-
Za dziecko do 13 roku życia: € 9,-
Cztery apartamenty mają po 70 m² z dwoma oddzielnymi sypialniami.
Wyposażenie pokoju
suszarka do włosów, możliwość korzystania z pralki, pokój/ apartament w spokojnej okolicy, zlew do mycia naczyń, lodówka, meble ogrodowe, balkon, toster, lodówka do dyspozycji, łąka, naczynia kuchenne do dyspozycji gości, salonik, ekspres do kawy, Größe m²: 70, radiobudzik, kuchenka elektryczna, telewizja kablowa, czajnik bezprzewodowy, ogród, kominek, oddzielna sypialnia: 2, ogrzewanie centralne, WiFi, meble rustykalne, telefon, salon/sypialnia oddzielone, meble kuchenne, pokój dla niepalących, radio, bielizna stołowa i kuchenna, zmywarka, wentylator, sejf, zwierzeta domowe za porozumieniem, piec kaflowy, telewizor, biurko, kuchenka mikrofalowa, szafa, piec opalany drewnem
Bed distribution
możliwość rozdzielenia łóżek, number couch/es: 1, dodatkowe łóżko, dostawka, number double bed/s: 1, number single bed/s: 2, tapczan
położenie/pokój z widokiem/apartament
parter, dostępny
Wyposażenie sanitarne
bidet, podwójna umywalka, ilość łazienek: 2, oddzielne WC, ilość toalet: 2, prysznic lub wanna, bathtub with integrated shower
Udostępnianie pomieszczeń
Appartment
AvailableAvailable, No arrivalOnly departureNot available -
od 110,00 €
Rozmiar 70 m² Miejsca 1 - 6 osoby dorosłe , 0 - 5 dzieci Pokoje 3 Sypialnia 2 opis pokoju
W centralnej lokalizacji w Ramsau Ort znajduje się nasz pensjonat Prugger.
W cenie zawarta jest karta Dachstein Sommercard dzięki której można korzystać z licznych atrakcji takich jak wyciągi, drogi płatne, jeziora i wiele innych za darmo. Otrzymacie również Ramsau Wintercard nieodpłatnie!
Śniadanie dostępne na życzenie w Hotelu Kirchenwirt - Pehab!
Prosimy o wcześniejsze zgłoszenie i płatność na miejscu:
Na osobę dorosłą: € 18,-
Dla dzieci do 13 lat: € 9,-
Wyposażenie pokoju
kuchenka mikrofalowa, możliwość przygotowywania posiłków, szafa, czajnik bezprzewodowy, kuchenka elektryczna, lodówka do dyspozycji, meble kuchenne, telewizor, balkon, pokój dla niepalących, zmywarka, ogrzewanie centralne, ekspres do kawy, pokój/ apartament w spokojnej okolicy, zlew do mycia naczyń, oddzielna sypialnia: 2, pojemnik do zamrażania, możliwość korzystania z pralki, Größe m²: 70, naczynia kuchenne do dyspozycji gości, telewizja satelitarna, pokój rodzinny, zwierzeta domowe za porozumieniem, lodówka, wentylator
Wyposażenie sanitarne
bathtub with integrated shower, bieżąca woda ciepła/zimna, ilość łazienek: 2, oddzielne WC, ilość toalet: 2, prysznic, WC
położenie/pokój z widokiem/apartament
parter, dostępny
Bed distribution
number double bed/s: 2, rozkładana kanapa, max. osób/y: 2, number couch/es: 1
Udostępnianie pomieszczeń
Appartment
AvailableAvailable, No arrivalOnly departureNot available -
od 110,00 €
Rozmiar 70 m² Miejsca 1 - 6 osoby dorosłe , 0 - 5 dzieci Pokoje 3 Sypialnia 2 opis pokoju
W centralnej lokalizacji w Ramsau Ort znajduje się nasz Dom Gościnny Prugger.
W cenie zawarta jest karta Dachstein Sommercard dzięki której mogą Państwo korzystać z wielu atrakcji, takich jak kolejki linowe, drogi płatne, jeziora i wiele więcej, za darmo. Otrzymają Państwo również Ramsau Wintercard gratis!
Śniadanie na życzenie w hotelu Kirchenwirt - Pehab do dokupienia!
Prosimy o wcześniejsze zgłoszenie oraz płatność na miejscu:
Za dorosłego: € 18,-
Za dziecko do 13 lat: € 9,-
Cztery apartamenty mają po 70 m² i po 2 oddzielne sypialnie.
Wyposażenie pokoju
pokój odizolowany od hałasu, zwierzeta domowe za porozumieniem, lodówka, meble ogrodowe, toster, bielizna stołowa i kuchenna, salon/sypialnia oddzielone, kuchenka elektryczna, taras, możliwość korzystania z pralki, piec kaflowy, sejf, telewizja satelitarna, suszarka, radio, zmywarka, czajnik bezprzewodowy, zlew do mycia naczyń, telewizja kablowa, pokój/ apartament w spokojnej okolicy, naczynia kuchenne do dyspozycji gości, Größe m²: 70, telefon, ogrzewanie centralne, ogród, lodówka do dyspozycji, pralka, ekspres do kawy, pokój rodzinny, meble kuchenne, pokój dla niepalących, oddzielna sypialnia: 2, suszarka do włosów, akcesoria toaletowe, biurko, salonik, telewizor
Udostępnianie pomieszczeń
Appartment
Bed distribution
dostawka, możliwość rozdzielenia łóżek, tapczan, number double bed/s: 2, dodatkowe łóżko
Wyposażenie sanitarne
bathtub with integrated shower, bieżąca woda ciepła/zimna, ilość łazienek: 1, oddzielne WC, ilość toalet: 2
położenie/pokój z widokiem/apartament
dostępny, piętro: 1
AvailableAvailable, No arrivalOnly departureNot available -
od 245,00 €
Rozmiar 70 m² Miejsca 1 - 6 osoby dorosłe , 0 - 5 dzieci Pokoje 3 Sypialnia 2 opis pokoju
W centrum Ramsau znajduje się nasz Pensjonat Prugger.
W cenie zawarta jest karta Dachstein Sommercard dzięki której można korzystać z wielu atrakcji, takich jak wyciągi, drogi płatne, jeziora i wiele więcej, całkowicie bezpłatnie. Otrzymują Państwo także Ramsau Wintercard nieodpłatnie!
Śniadanie dostępne na życzenie w hotelu Kirchenwirt - Pehab za dodatkową opłatą!
Proszę o wcześniejsze zgłoszenie i płatność na miejscu:
Za dorosłego: € 18,-
Za dziecko do 13 lat: € 9,-
Wyposażenie pokoju
naczynia kuchenne do dyspozycji gości, zwierzeta domowe za porozumieniem, szafa, meble balkonowe, pokój rodzinny, wentylator, czajnik bezprzewodowy, telewizor, Größe m²: 70, ogrzewanie centralne, pokój/ apartament w spokojnej okolicy, pojemnik do zamrażania, meble kuchenne, zmywarka, kuchenka elektryczna, lodówka, WiFi, oddzielna sypialnia: 2, zlew do mycia naczyń, pokój dla niepalących, lodówka do dyspozycji, meble rustykalne, możliwość korzystania z pralki
Wyposażenie sanitarne
bieżąca woda ciepła/zimna, ilość łazienek: 1, oddzielne WC, ilość toalet: 2, bathtub with integrated shower
położenie/pokój z widokiem/apartament
dostępny, piętro: 1
Udostępnianie pomieszczeń
Appartment
Bed distribution
number double bed/s: 2, rozkładana kanapa, max. osób/y: 2, number couch/es: 1
AvailableAvailable, No arrivalOnly departureNot available
-
Indywidualna obsługa
-
Stuprocentowa przejrzystość cen
-
Bezpieczeństwo dzięki szyfrowaniu SSL
-
Obiektywne oceny